
Svängstigen 10A Trollbäcken - Tyresö 6 rok 157 kvm Pris på förfrågan
Välkommen till denna omhändertagna och trivsamma 1,5-plansvilla med lättskött och skyddad tomt – en perfekt bostad för barnfamiljen som söker ett tryggt, lugnt och naturnära boende med närhet till allt man behöver i vardagen.
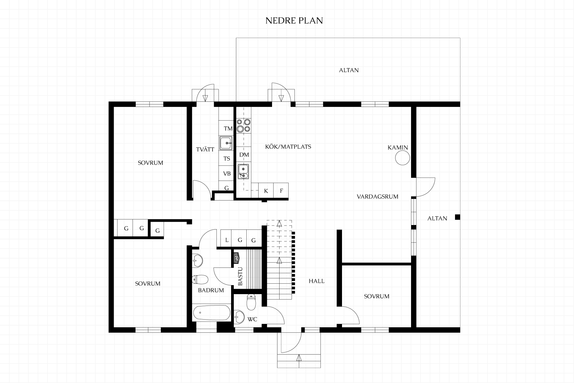
Huset, uppfört under 1970-talet, har varsamt tagits om hand genom åren och erbjuder en planlösning som passar både den lilla och den växande familjen. På entréplanet finns tre bra sovrum, vilket gör vardagen enkel och praktisk. Här finns även ett hemtrevligt vardagsrum med plats för både soffgrupp och matsalsdel – perfekt för umgänge och mysiga hemmakvällar med en sprakande, värmande brasa. Köket som är renoverat för några år sedan är funktionellt med god förvaring och utgång till den stora altanen finns från både kök och vardagsrum. Här finns flera bra platser för både matbord, sittgrupp, solstolar och lek i trädgården för de små. Stort badrum med bastu finns, tvättstuga och separat gäst-wc i hallen. Det övre planet erbjuder möjlighet till extra allrum/TV-rum och ett stort sovrum eller hobbyyta – perfekt för dig som vill kunna anpassa ytan efter familjens behov.
Tomten ligger avskilt på en skafttomt, vilket ger både lugn och insynsskydd. Här kan barnen leka tryggt medan de vuxna njuter av solen på den generösa altanen. Trädgården är lättskött med gräsyta, grönska och plats för både lek och odling. Till huset hör även garage samt laddbox för elbil på uppfarten – ett stort plus i vardagen. Ett hem att trivas i – här får du både bekvämlighet, charm och ett tryggt läge för hela familjen. Välkommen till Svängstigen 10A – ditt nya hem i hjärtat av Trollbäcken!
Huset, uppfört under 1970-talet, har varsamt tagits om hand genom åren och erbjuder en planlösning som passar både den lilla och den växande familjen. På entréplanet finns tre bra sovrum, vilket gör vardagen enkel och praktisk. Här finns även ett hemtrevligt vardagsrum med plats för både soffgrupp och matsalsdel – perfekt för umgänge och mysiga hemmakvällar med en sprakande, värmande brasa. Köket som är renoverat för några år sedan är funktionellt med god förvaring och utgång till den stora altanen finns från både kök och vardagsrum. Här finns flera bra platser för både matbord, sittgrupp, solstolar och lek i trädgården för de små. Stort badrum med bastu finns, tvättstuga och separat gäst-wc i hallen. Det övre planet erbjuder möjlighet till extra allrum/TV-rum och ett stort sovrum eller hobbyyta – perfekt för dig som vill kunna anpassa ytan efter familjens behov.
Tomten ligger avskilt på en skafttomt, vilket ger både lugn och insynsskydd. Här kan barnen leka tryggt medan de vuxna njuter av solen på den generösa altanen. Trädgården är lättskött med gräsyta, grönska och plats för både lek och odling. Till huset hör även garage samt laddbox för elbil på uppfarten – ett stort plus i vardagen. Ett hem att trivas i – här får du både bekvämlighet, charm och ett tryggt läge för hela familjen. Välkommen till Svängstigen 10A – ditt nya hem i hjärtat av Trollbäcken!
Interiör
Fakta
Upplåtelseform
Friköpt
Fast.beteckning
Kumla 3:1428
Adress
Svängstigen 10A
Område
Trollbäcken - Tyresö, Tyresö
Boarea
157 m²
Antal rum
6 rum och kök, varav 4 sovrum
Areakälla
taxeringsinformation
Tomtarea
791 m²
Byggnad
Byggnadsår
1976
Vatten/avlopp
Kommunalt vatten året om. Kommunalt avlopp
Besiktning
Förbesiktigad
Ja
Säljarförsäkring
Ja
Energideklaration
Status
Utförd (2025-10-03)
Primärenergital
98 kWh/m2 och år
Energiklass
D
Ekonomi
Taxeringsinformation
Taxeringsvärde
5 270 000 kr
Taxeringsår
2024
Värdeår
1976
Byggnadsvärde
2 871 000 kr
Markvärde
2 399 000 kr
Fastighetsavgift
10 074 kr/år
Typkod
220, Småhusenhet, bebyggd
Pantbrev
Totalt 10 st pantbrev om 1 604 850 kr.
Servitut / Planbestämmelser
Rättigheter / gemensamhetsanläggningar
Avtalsservitut Garageinfart mm
Förmån: Avtalsservitut Ledning, 01-IM8-76/4081.1
Last: Avtalsservitut Garageinfart mm, 01-IM8-87/30832.1
Förmån: Avtalsservitut Ledning, 01-IM8-76/4081.1
Last: Avtalsservitut Garageinfart mm, 01-IM8-87/30832.1
Planbestämmelser
Byggnadsplan (1954-06-12)
Område
Allmänt
Trollbäcken är ett av Tyresös mest omtyckta områden, uppskattat för sin familjevänliga atmosfär, närhet till naturen och goda kommunikationer. Här bor du med gångavstånd till skolor, förskolor, lekplatser och flera grönområden. Drevviken med sina badplatser, promenadstråk och vinteris ligger på bekvämt avstånd för den som vill njuta av friluftsliv året runt.
Kommunikationerna är mycket goda – bussar tar dig snabbt till Gullmarsplan, Tyresö centrum och Haninge. För den bilburne nås Tyresövägen och motorvägen mot Stockholm på bara några minuter.
I närområdet finns flera mataffärer, caféer och restauranger, samt Tyresö centrum med sitt breda utbud av service, shopping och vård.
Kommunikationerna är mycket goda – bussar tar dig snabbt till Gullmarsplan, Tyresö centrum och Haninge. För den bilburne nås Tyresövägen och motorvägen mot Stockholm på bara några minuter.
I närområdet finns flera mataffärer, caféer och restauranger, samt Tyresö centrum med sitt breda utbud av service, shopping och vård.
Dokument
