Havrevägen 6 Kvarnholmen 3.5 rok 69 + 15 kvm 6 495 000 kr /Bud
Mellan blomstrande trädgårdar i södersluttningen mot Svindersvik gömmer sig detta idylliska funkisradhus med terrass och grönskande trädgård. Med anor från 1929-1930 stoltserar Olof Thunsströms arkitektritade radhus med en byggnadsminnesmärkning vilket gjort dem omtalade. På Havrevägen 6 möter detaljerad ombyggnation och varsam renovering den bevarade arkitekturen i en sober avvägning. Här erbjuds ett helt underbart boende av minutiöst välplanerade kvadratmeter om tre rum och kök med rymlig källare. Stora fönsterpartier, speglade dörrar och gedigna golvtiljor bryter smakfullt av mot platsbyggda förvaringslösningar, modernt kök och exklusiva materialval. Öppen planlösning mellan kök och vardagsrum gör att de sociala ytorna kommer i fokus.
Huset är försett med två sovrum där det stora sovrummet vetter mot husets terrass och är tack vare sitt höga läge skyddat från insyn. Äldre badrum med dusch, tvättmaskin och torktumlare samt separat wc. Sist men inte minst erbjuds en stor terrass i söderläge med tak vilket gör den användbar även kallare årstider. En trappa ner från terrassen möter ni den lummiga trädgården med blomstrande rabatter, buskar och odlingar. Ett stort, fantastiskt äppelträd ger skugga soliga sommardagar och bär mycket frukt av två olika äppelsorter. Under äppelträdet ges ordentligt med utrymme för solstolar på vacker Ölandssten vilken sluter upp mot en slingrande gång ner till grinden. Från trädgården ges ingång till källaren. Källaren är ca 15 kvm med två rum. Detta hus är ett av de få som har två rum med ett fönster i varje rum.
Kvarnholmen är ett expansivt område i ständig utveckling där skärgården möter innerstan, där funktionalismens arkitektur möter samtida, industriell design.
Varmt välkomna på visning!
Huset är försett med två sovrum där det stora sovrummet vetter mot husets terrass och är tack vare sitt höga läge skyddat från insyn. Äldre badrum med dusch, tvättmaskin och torktumlare samt separat wc. Sist men inte minst erbjuds en stor terrass i söderläge med tak vilket gör den användbar även kallare årstider. En trappa ner från terrassen möter ni den lummiga trädgården med blomstrande rabatter, buskar och odlingar. Ett stort, fantastiskt äppelträd ger skugga soliga sommardagar och bär mycket frukt av två olika äppelsorter. Under äppelträdet ges ordentligt med utrymme för solstolar på vacker Ölandssten vilken sluter upp mot en slingrande gång ner till grinden. Från trädgården ges ingång till källaren. Källaren är ca 15 kvm med två rum. Detta hus är ett av de få som har två rum med ett fönster i varje rum.
Kvarnholmen är ett expansivt område i ständig utveckling där skärgården möter innerstan, där funktionalismens arkitektur möter samtida, industriell design.
Varmt välkomna på visning!
Interiör
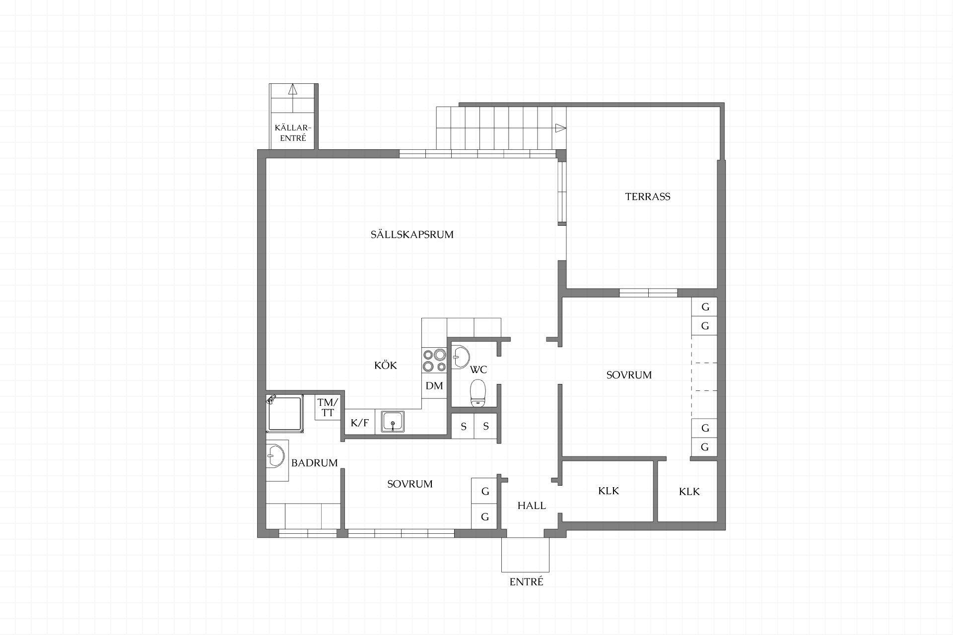
Välkomnande entré med gott om plats för avhängning i generös, anslutande klädkammare. Ljusmålade väggar följer vidare in i sällskapsrum och kök. Vackert kalkstensgolv möter ljuspigmenterade, gedigna golvtiljor vilket sedan är genomgående för resten av huset.
Vidare in genom möblerbar inre hall öppnar sällskapsrum och kök upp sig i en öppen planlösning. Tack vare åtta fönster i följd och halvglasad altandörr fullkomligt flödar ljuset in i varje vrå och inger en känsla av luft och rymd. Sällskapsrummets kan med fördel möbleras med större soffgrupp och mediamöblemang. En naturlig plats för det större matsalsbordet ges framför fönsterpartiet.
Köket följer i vinkel längst med rummets inre väggar och erbjuder såväl gott om skåp och lådor som generösa arbetsytor på kalkstensskiva. Full maskinell utrustning av induktionshäll med varmluftsugn nedan samt integrerad kyl/frys, diskmaskin samt spisfläkt. Köket har genomgått en ombyggnation om då samtliga skåp, lådor samt all maskinell utrustning byttes ut förutom fläkten. Skåp och lådor har målats i samma nyans som rummets väggfärg. Specialbeställda handtag från Beardmore i England.
Huset är försett med två sovrum. Det stora sovrummet vetter mot husets terrass och trädgård och är tack vare sitt höga läge helt skyddat från insyn. En detaljritad, platsbyggd garderobsvägg med överskåp ramar in sängplatsen med plats för 180 cm bred säng. Infällda nattduksbord med el för belysning. Garderobsväggen är målad i samma nyans som väggfärgen för en enhetlig känsla. Ordentlig klädkammare med hyllplan samt klädstänger i två höjder erbjuder ypperlig förvaring från golv till tak.
Det mindre sovrummet vetter mot husets framsida. Ett ljust, mysigt rum med fyra fönster i följd vilka bjuder på rikligt med ljusinsläpp. Under fönsterpartiet finns en detaljritad, platsbyggd bokhylla med elementskydd. Optimal förvaring i platsbyggd pargarderob vilken tillsammans med bevarad garderob och städskåp erbjuder ypperlig förvaring. Pargarderoben är målad i samma nyans som de ljusgrå väggarna. Rummet ger plats för enkelsäng samt sängbord.
Huset har separat badrum och wc. Badrummet nås med ingång från det mindre sovrummet. Äldre badrum byggt före 2000-talet. Vita, halvkalkade väggar bryter smakfullt av mot mörkmålade väggar och sandfärgade skåp. Tvättställ på kalkstensskiva ovan kommod ger tillsammans med väggskåp under fönstret mycket god förvaring. Tvättstället kommer att plockas bort inför tillträdet och det är upp till den aktuella köparen att själv välja och sätta dit ett nytt tvättställ. Stort parfönster i bubbligt glas är skyddat från insyn och släpper in rikligt med dagsljus. Duschkabin samt tvättpelare med tvättmaskin från Husqvarna och torktumlare från Electrolux.
Wc:n nås med ingång från den inre delen av hallen. Utrymmet har totalrenoverats med klinkergolv av kalksten, platsbyggda hyllplan ovan wc:n. Mörkmålade väggar möter vita snickerier och vägglister. Tvättställ med spegel på väggen ovan.
Från sällskapsrummet ges utgång till den stora terrassen i söderläge. Terrassen är försedd med tak vilket gör den användbar även under kallare årstider.
En trappa ner från terrassen möter ni den lummiga trädgården med gräsmatta, blomstrande rabatter, buskar och odlingar. Ett stort, fantastiskt äppelträd ger skugga soliga sommardagar och bär mycket frukt av två olika äppelsorter. Under äppelträdet ges ordentligt med utrymme för solstolar eller cafégrupp på vacker, lagd Ölandssten vilken sluter upp mot en slingrande gång ner till grinden. Från trädgården ges ingång till källaren.
En trappa ner nås husets källare. Källaren är ca 15 kvm med ingång från trädgården. Detta hus är ett av de få som har två rum med ett fönster i varje rum. Idag står en frys i det första rummet vilken lämnas kvar vid överenskommelse.
Information gällande alternativ planritning:
För den som önskar göra om badrummet, se förslag i alternativ planritning. Detta förslag har inte stämts av med vare sig föreningen eller Stadsbyggnadsservice i Nacka kommun. Det är upp till den aktuella köparen att själv ta reda på vidare information och fakta vid renovering och ombyggnation samt själv ta fullt ansvar och att ansöka om det vid intresse.
Övrigt:
Lägenheten är enligt lägenhetsförteckningen 2 rok men nyttjas av nuvarande ägare som 3,5 rok. Det gamla köket har öppnats upp mot vardagsrummet för en öppen planlösning mellan vardagsrum och kök. En vägg har satts upp och en del av det gamla köket nyttjas idag som sovrum (genomgånsrum). Denna ombyggnation stämdes av med föreningen samt Stadsbyggnadsservice i Nacka kommun vid tillfället för ombyggnationen. Föreningen har fått in all dokumentation gällande ombyggnationen.
Vidare in genom möblerbar inre hall öppnar sällskapsrum och kök upp sig i en öppen planlösning. Tack vare åtta fönster i följd och halvglasad altandörr fullkomligt flödar ljuset in i varje vrå och inger en känsla av luft och rymd. Sällskapsrummets kan med fördel möbleras med större soffgrupp och mediamöblemang. En naturlig plats för det större matsalsbordet ges framför fönsterpartiet.
Köket följer i vinkel längst med rummets inre väggar och erbjuder såväl gott om skåp och lådor som generösa arbetsytor på kalkstensskiva. Full maskinell utrustning av induktionshäll med varmluftsugn nedan samt integrerad kyl/frys, diskmaskin samt spisfläkt. Köket har genomgått en ombyggnation om då samtliga skåp, lådor samt all maskinell utrustning byttes ut förutom fläkten. Skåp och lådor har målats i samma nyans som rummets väggfärg. Specialbeställda handtag från Beardmore i England.
Huset är försett med två sovrum. Det stora sovrummet vetter mot husets terrass och trädgård och är tack vare sitt höga läge helt skyddat från insyn. En detaljritad, platsbyggd garderobsvägg med överskåp ramar in sängplatsen med plats för 180 cm bred säng. Infällda nattduksbord med el för belysning. Garderobsväggen är målad i samma nyans som väggfärgen för en enhetlig känsla. Ordentlig klädkammare med hyllplan samt klädstänger i två höjder erbjuder ypperlig förvaring från golv till tak.
Det mindre sovrummet vetter mot husets framsida. Ett ljust, mysigt rum med fyra fönster i följd vilka bjuder på rikligt med ljusinsläpp. Under fönsterpartiet finns en detaljritad, platsbyggd bokhylla med elementskydd. Optimal förvaring i platsbyggd pargarderob vilken tillsammans med bevarad garderob och städskåp erbjuder ypperlig förvaring. Pargarderoben är målad i samma nyans som de ljusgrå väggarna. Rummet ger plats för enkelsäng samt sängbord.
Huset har separat badrum och wc. Badrummet nås med ingång från det mindre sovrummet. Äldre badrum byggt före 2000-talet. Vita, halvkalkade väggar bryter smakfullt av mot mörkmålade väggar och sandfärgade skåp. Tvättställ på kalkstensskiva ovan kommod ger tillsammans med väggskåp under fönstret mycket god förvaring. Tvättstället kommer att plockas bort inför tillträdet och det är upp till den aktuella köparen att själv välja och sätta dit ett nytt tvättställ. Stort parfönster i bubbligt glas är skyddat från insyn och släpper in rikligt med dagsljus. Duschkabin samt tvättpelare med tvättmaskin från Husqvarna och torktumlare från Electrolux.
Wc:n nås med ingång från den inre delen av hallen. Utrymmet har totalrenoverats med klinkergolv av kalksten, platsbyggda hyllplan ovan wc:n. Mörkmålade väggar möter vita snickerier och vägglister. Tvättställ med spegel på väggen ovan.
Från sällskapsrummet ges utgång till den stora terrassen i söderläge. Terrassen är försedd med tak vilket gör den användbar även under kallare årstider.
En trappa ner från terrassen möter ni den lummiga trädgården med gräsmatta, blomstrande rabatter, buskar och odlingar. Ett stort, fantastiskt äppelträd ger skugga soliga sommardagar och bär mycket frukt av två olika äppelsorter. Under äppelträdet ges ordentligt med utrymme för solstolar eller cafégrupp på vacker, lagd Ölandssten vilken sluter upp mot en slingrande gång ner till grinden. Från trädgården ges ingång till källaren.
En trappa ner nås husets källare. Källaren är ca 15 kvm med ingång från trädgården. Detta hus är ett av de få som har två rum med ett fönster i varje rum. Idag står en frys i det första rummet vilken lämnas kvar vid överenskommelse.
Information gällande alternativ planritning:
För den som önskar göra om badrummet, se förslag i alternativ planritning. Detta förslag har inte stämts av med vare sig föreningen eller Stadsbyggnadsservice i Nacka kommun. Det är upp till den aktuella köparen att själv ta reda på vidare information och fakta vid renovering och ombyggnation samt själv ta fullt ansvar och att ansöka om det vid intresse.
Övrigt:
Lägenheten är enligt lägenhetsförteckningen 2 rok men nyttjas av nuvarande ägare som 3,5 rok. Det gamla köket har öppnats upp mot vardagsrummet för en öppen planlösning mellan vardagsrum och kök. En vägg har satts upp och en del av det gamla köket nyttjas idag som sovrum (genomgånsrum). Denna ombyggnation stämdes av med föreningen samt Stadsbyggnadsservice i Nacka kommun vid tillfället för ombyggnationen. Föreningen har fått in all dokumentation gällande ombyggnationen.
Fakta
Upplåtelseform
Bostadsrätt
Adress
Havrevägen 6
Område
Kvarnholmen, Nacka
Förening
Brf Funkisraderna
Lgh.nr
13
Bo & biarea
69 + 15 m²
Areakälla
Ekonomisk förvaltare. Biyta är uppskattad yta av föreningens styrelse, ej uppmätt..
Antal rum
3.5 rum och kök
Månadsavgift
5 289 kr/mån
I avgiften ingår värme och vatten.
Pris
6 495 000 kr /Bud
Byggnad
Byggnadstyp
Radhus
Byggnadsår
1929-1930
Uppvärmning
Fjärrvärme
Uteplats
Ja
Energideklaration
Status
Utförd (2022-04-14)
Primärenergital
181 kWh/m2 och år
Energiklass
F
Förening
Om föreningen
Brf Funkisraderna förvärvade fastigheten Sicklaön 38:3 år 2017. Föreningen består av 28 bostadsrätter och 2 hyresrätter på adresserna Tre Kronors väg 14-30, Havrevägen 2-16, Vetevägen 2-14 och Rågvägen 2-12. Hyresrätterna är en dold framtida tillgång för föreningen. Radhusen kallas ofta för Sveriges "första funkisradhus".
Radhusen på Kvarnholmen ritades av KF:s arkitektkontor genom Olof Thunström 1928 och uppfördes som arbetarbostäder för KF's bageriverksamhet. Radhusen inom fastigheten Sicklaön 38:3 förklarades som byggnadsminne den 11 mars 2016 tillsammans med flera andra historiska byggnader på Kvarnholmen.
Mer information finns på föreningens hemsida https://www.funkisraderna.se/
Radhusen på Kvarnholmen ritades av KF:s arkitektkontor genom Olof Thunström 1928 och uppfördes som arbetarbostäder för KF's bageriverksamhet. Radhusen inom fastigheten Sicklaön 38:3 förklarades som byggnadsminne den 11 mars 2016 tillsammans med flera andra historiska byggnader på Kvarnholmen.
Mer information finns på föreningens hemsida https://www.funkisraderna.se/
Namn
Brf Funkisraderna
Adress
Havrevägen 6
Byggnadsår
1929-1930
Byggnadstyp
Radhus
Org.form
Bostadsrätt
Org.nummer
769632-1913
Föreningens ekonomi
Föreningen höjde avgiften 3,5% fr o m 1/1 2026. Den nya avgiften för den aktuella lägenheten är den publicerade avgiften, 5 289kr. Bakgrunden är framförallt höjningar på fjärrvärme, räntor samt en osäkerhet avseende intäkter från garaget (avtalet med Parkman är uppsagt och ny operatör kommer att avtalas inom kort). Med höjningen är budgeten i balans. (info från styrelsen 2025-10-24).
Äkta/oäkta förening?
Äkta
Antal lägenheter
30 st
varav 2 st hyresrätt(er)
TV/bredband
Fastigheten är ansluten till kabelnät och Internet via Tele2.
Överlåtelseavgift
2072 kr
(betalas av
köpare)
Pantsättningsavgift
888 kr
Tillåts juridisk person?
Nej
Tillåts delat ägande?
Ja, minsta ägarandel är 10%
Äger föreningen marken?
Ja
Renoveringar
Urval av utförda renoveringar och underhåll:
2025 Värmesystemet är uppdaterat med nya ventiler och termostater samt allmän översyn.
2024 Radon, åtgärder.
2023 Rengöring och service av ventilation.
2022 Renovering av fönster och fasader inklusive källardörrar och stuprör. Tak, besiktning och reparation.
2018 Reparation av källartrappor.
Stammarna är bytta, troligen på 90-talet. Dessa går i kulvert under huset och är lätt åtkomliga.
Föreningen följer en upprättad underhållsplan.
Planerade underhåll:
Det finns ingen större beslutad renovering i närtid. Inom ett par år ska takrenovering ske. Föreningen renoverar eller byter löpande ut ventilationsaggregaten vid behov (info från styrelsen 2025-10-24).
2025 Värmesystemet är uppdaterat med nya ventiler och termostater samt allmän översyn.
2024 Radon, åtgärder.
2023 Rengöring och service av ventilation.
2022 Renovering av fönster och fasader inklusive källardörrar och stuprör. Tak, besiktning och reparation.
2018 Reparation av källartrappor.
Stammarna är bytta, troligen på 90-talet. Dessa går i kulvert under huset och är lätt åtkomliga.
Föreningen följer en upprättad underhållsplan.
Planerade underhåll:
Det finns ingen större beslutad renovering i närtid. Inom ett par år ska takrenovering ske. Föreningen renoverar eller byter löpande ut ventilationsaggregaten vid behov (info från styrelsen 2025-10-24).
Parkering
Bostadsrättsföreningen äger 24 garageplatser i Spisbrödsgaraget. In- och utfart sker på Kvarnholmsvägen 84-85. Parkman AB sköter driften av garaget samt administrativ hantering som kontraktsskrivning, fakturering och uppsägning. Månadshyran är för närvarande 1400 kr (år 2025). Garageplatsen gäller för bil, mc, moped eller annat fordon. Om föreningens 24 garageplatser skulle vara upptagna finns möjlighet att hyra eventuellt andra lediga platser i garaget. I annat fall tillämpas kötid. Föreningens garageplatser är i första hand avsedda för boende i brf Funkisraderna. Det finns i dagsläget 7 st garageplatser lediga enligt Parkman. Kontakta Parkman om du önskar hyra en permanent garageplats tel 08-734 90 00 (info från Parkman 2025-10-22).
Föreningen har en besöksparkeringsplats nedanför Tre Kronors väg 14 A vid Valsvägen. Du är välkommen att boka platsen för dina gäster. Parkeringsplatsen kan bokas för en tid av maximalt två dygn i följd. Om föreningens besöksplats är upptagen finns möjlighet för besökare att mot avgift parkera i Spisbrödsgaraget.
Avtalet med Parkman är uppsagt och ny operatör kommer att avtalas inom kort).
Föreningen har en besöksparkeringsplats nedanför Tre Kronors väg 14 A vid Valsvägen. Du är välkommen att boka platsen för dina gäster. Parkeringsplatsen kan bokas för en tid av maximalt två dygn i följd. Om föreningens besöksplats är upptagen finns möjlighet för besökare att mot avgift parkera i Spisbrödsgaraget.
Avtalet med Parkman är uppsagt och ny operatör kommer att avtalas inom kort).
Gemensamma utrymmen
Brf Funkisraderna har tillgång till två sopkassuner. Det är endast tillåtet att slänga hushållsavfall i sopkassunen. Du hittar dem vid:
- Korsningen Rågvägen/Siktvägen (invid lekplatsen Lilla Kvarnhomen).
- Tre Kronors väg 29. Vid Tre Kronors väg står två kassuner, vår är den östra, dvs den som står längst ifrån huskroppen.
- Korsningen Rågvägen/Siktvägen (invid lekplatsen Lilla Kvarnhomen).
- Tre Kronors väg 29. Vid Tre Kronors väg står två kassuner, vår är den östra, dvs den som står längst ifrån huskroppen.
Ekonomi
Pris
6 495 000 kr /Bud
Månadsavgift
5 289 kr/mån. I avgiften ingår värme och vatten.
Andel i föreningen
3.19875%
Andel av årsavgift
3.21902%
Indirekt nettoskuldsättning
729 848 kr. Uppgifter hämtad ur årsredovisning 2024
Pantsatt
Ja
Driftskostnader per år
Hushållsel
6 000 kr
Antal personer i hushållet
3 st
Summa
6 000 kr
Hushållselen är schablonberäknad.
Försäkring tillkommer.
De nya ägarna rekommenderas alltid att räkna på både en högre och lägre kostnad för el då leverantör och förbrukning är individuell och kan variera mycket.
Område
Allmänt
Läget är fenomenalt! Kvarnholmen är ett expansivt område i ständig utveckling, beläget vid Stockholms inlopp med anrika Djurgården på andra sidan Saltsjön. Kvarnholmen har på senare år blommat upp till ett omtalat område vilket stoltserar med industriell, modern och samtida arkitektur mitt i idyllisk skärgårdsmiljö. Här bor ni omringad av vatten och natur med härliga promenadstråk längs med vattnet.
På Kvarnholmen finns ett trevligt närcentrum med all nödvändig, tänkbar service. Detta närcentrum ligger ett stenkast från bostaden. Här finns en välsorterad Coop butik, ett mysigt bageri, restaurang, skräddare/ kemtvätt/ skomakare, nyckelservice, apotek, postombud, gym, tandläkare, gynekolog samt vårdcentral. Längre ned på gatan finner ni även en sushibar samt tre ytterligare restauranger med fantastisk mat samt ytterligare ett gym. För vidare information kan ni surfa in på Kvarnholmens hemsida och bekanta er med området: http://www.kvarnholmen.com/
För dem som önskar lekplats för de små är Kvarnholmen ett utmärkt område. Här finns populära " Lilla Kvarnholmen", väl värt ett besök. En charmig, idyllisk lekplats där barnen kan leka i en unik och kreativ miljö. Här finns också boulebana, grillplats, soldäck och gott om sittplatser. I lekparken finns miniatyrer av den gamla industrimiljön och mycket att upptäcka och leka med. Den har designats av Tor Svae och bygger på idéer från boende på Kvarnholmen. Parken ligger i sluttningen ner mot Södra Kajen och Svindersvik med strålande utsikt och södersol, ni hittar den vid Siktvägen bredvid radhusen.
På Kvarnholmen finns också Sveriges godaste glass. SNÖ som huserar på Mjölnarvägen 26 vid Kvarnholmens kaj vann i april 2016 Sveriges första officiella glass-SM. Glassmästaren Kenneth Erlandson serverar förutom landets godaste glass också matiga mackor, focaccia och kaffe. Väl värt ett besök!
För den träningssugna finns sporthall, fotbollsplaner, utegym med fint utsikt över vattnet samt en yoga studio. För den som gillar padel finns en padelhall mellan Kvarnholmen och Finnboda. Via strandpromenad runt Svindersvik når man Svindersviksbrygghus och dess levande båtklubbar.
Såväl Södermalm som Nacka Forum och Sickla köpkvarter finns inom behagligt promenadavstånd.
Sommarbaren Don Bar, Kajen på Nacka Strand med minigolf och flera restauranger som Deli Molinari och Don Felice inom promenadavstånd.
Vid Kajen nere vid Finnboda ligger Finnboda hamnkrogen, en restaurang med oslagbara läge och utsikt över Saltsjön och Djurgården.
Området bjuder på två populära förskolor samt Ebba Braheskolan med både grundskola och gymnasium.
Kommunikationerna till och från Kvarnholmen är exemplariska. Området trafikeras av buss 402 vilken tar er till Slussen på ca 10 minuter eller till Nacka Strand och Nacka Forum på ca 5 minuter. Med pendelbåten kan ni enkelt och trivsamt pendla till Nybroplan på ca 25 minuter eller till Djurgården på ca 4 minuter. Pendelbåten går även till Lidingö eller Frihamnen på ca 15-25 minuter. På pendelbåten gäller vanligt SL kort, här får cyklar tas med. Pendelbåten trafikerar tio bryggor mellan Nybroplan- Nacka- Lidingö-Frihamnen. Med bil når ni Södra länken och Danvikstull på ett par minuter.
På Kvarnholmen finns ett trevligt närcentrum med all nödvändig, tänkbar service. Detta närcentrum ligger ett stenkast från bostaden. Här finns en välsorterad Coop butik, ett mysigt bageri, restaurang, skräddare/ kemtvätt/ skomakare, nyckelservice, apotek, postombud, gym, tandläkare, gynekolog samt vårdcentral. Längre ned på gatan finner ni även en sushibar samt tre ytterligare restauranger med fantastisk mat samt ytterligare ett gym. För vidare information kan ni surfa in på Kvarnholmens hemsida och bekanta er med området: http://www.kvarnholmen.com/
För dem som önskar lekplats för de små är Kvarnholmen ett utmärkt område. Här finns populära " Lilla Kvarnholmen", väl värt ett besök. En charmig, idyllisk lekplats där barnen kan leka i en unik och kreativ miljö. Här finns också boulebana, grillplats, soldäck och gott om sittplatser. I lekparken finns miniatyrer av den gamla industrimiljön och mycket att upptäcka och leka med. Den har designats av Tor Svae och bygger på idéer från boende på Kvarnholmen. Parken ligger i sluttningen ner mot Södra Kajen och Svindersvik med strålande utsikt och södersol, ni hittar den vid Siktvägen bredvid radhusen.
På Kvarnholmen finns också Sveriges godaste glass. SNÖ som huserar på Mjölnarvägen 26 vid Kvarnholmens kaj vann i april 2016 Sveriges första officiella glass-SM. Glassmästaren Kenneth Erlandson serverar förutom landets godaste glass också matiga mackor, focaccia och kaffe. Väl värt ett besök!
För den träningssugna finns sporthall, fotbollsplaner, utegym med fint utsikt över vattnet samt en yoga studio. För den som gillar padel finns en padelhall mellan Kvarnholmen och Finnboda. Via strandpromenad runt Svindersvik når man Svindersviksbrygghus och dess levande båtklubbar.
Såväl Södermalm som Nacka Forum och Sickla köpkvarter finns inom behagligt promenadavstånd.
Sommarbaren Don Bar, Kajen på Nacka Strand med minigolf och flera restauranger som Deli Molinari och Don Felice inom promenadavstånd.
Vid Kajen nere vid Finnboda ligger Finnboda hamnkrogen, en restaurang med oslagbara läge och utsikt över Saltsjön och Djurgården.
Området bjuder på två populära förskolor samt Ebba Braheskolan med både grundskola och gymnasium.
Kommunikationerna till och från Kvarnholmen är exemplariska. Området trafikeras av buss 402 vilken tar er till Slussen på ca 10 minuter eller till Nacka Strand och Nacka Forum på ca 5 minuter. Med pendelbåten kan ni enkelt och trivsamt pendla till Nybroplan på ca 25 minuter eller till Djurgården på ca 4 minuter. Pendelbåten går även till Lidingö eller Frihamnen på ca 15-25 minuter. På pendelbåten gäller vanligt SL kort, här får cyklar tas med. Pendelbåten trafikerar tio bryggor mellan Nybroplan- Nacka- Lidingö-Frihamnen. Med bil når ni Södra länken och Danvikstull på ett par minuter.